Om prosjektet
Zander Kaaes stiftelse ble kjøpt av Grand Hotel Terminus i 2017. Bygningen har en lang historie som aldershjem, men er nå omgjort til hotell. I tilpasningen til ny bruk har eierne vært opptatt av å ivareta de opprinnelige kvalitetene i overflater og rom.
VERNESTATUS
Fredet
ADRESSE
Kong Oscars gate 67, Bergen.
PROSJEKTET
De Bergenske i samarbeid med Forum arkitekter og Claesson Koivisto Rune.
KONTAKT
De Bergenske
Historikk
Finansieringen til Zander Kaaes stiftelse kom fra Bergensborgeren Zander Kaaes testamentariske gave til et fattighus. Den fredede bygningen i senbarokk stil ble tegnet av Johan Joachim Reichborn, og ble oppført i 1769-1770. I sørøst grenser eiendommen til Grand Hotel Terminus, som i dag bruker den fredete trebygningen til hotellvirksomhet under navnet Villa Terminus.
Utfordringer og løsning
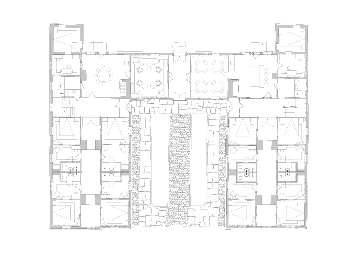
Bygningen har hatt en lang historikk med ulik bruk siden den ble oppført, blant annet som flyktningmottak og hybler i tillegg til den opprinnelige funksjonen som fattighus. Felles for disse funksjonene er behovet for mange separate værelser, noe som har ført til at det opprinnelige romstrukturen i stor grad er bevart.
Da bygget skulle tilpasses den nye bruken som en del av Grand Hotel Terminus var nok en gang romorganiseringen velegnet. Dette har ført til at tilpasningen til moderne overnattingsted i stor grad har handlet om tradisjonell restaurering av bygningen. Selv om prosjektet var opptatt av å ivareta verneverdiene i bygningen, ble det også behov for omfattende endringer, blant annet nytt tak og nye gulv. Nye tillegg som tekniske føringer ble nøye planlagt og lagt skjult i nye konstruksjoner. Restaurering av opprinnelige og eldre dører, vinduer, trapper og tømmervegger skjedde med hjelp av lokale tradisjonshåndverkere. Det er også satt inn innvendige varevinduer.
Villa Terminus er organisert med hotellrom i sidefløyene. Opprinnelig var det 10 rom, men nå er det i tillegg innredet til rom på loftet. I midtfløyen finnes oppholdsrom som stuer og kjøkken med interiør fra ulike tidsepoker. Opprinnelige og eldre detaljer som dører, vinduer og grue er bevart og kombinert med moderne møbler og innredning av høy kvalitet.
Læringspunkter
Ved å gi en bygning en ny bruk som likner den opprinnelige blir det mulig å unngå store endringer i tilpasningsprosessen


