Dette er ei rettleiing til korleis ein utarbeider dokumentasjon til fredingsvedtak for kulturminne freda etter kulturminnelova § 15 og område freda etter kulturminnelova § 19 rundt kulturminne freda etter kulturminnelova § 4, § 15, § 20 og § 22 a. Fredingsdokumentasjonen skal utarbeidast i Word, PowerPoint eller eit anna filformat som kan konverterast til PDF-format.
Innhold
1. Kva er fredingsdokumentasjon?
Fredingsdokumentasjonen skal dokumentere berre det som er freda, og som er relevant for å forstå verdien ved det freda kulturminnet / hensikta med fredingsområdet.
Fredingsdokumentasjonen inneheld utfyllande informasjon om kulturminnet som fredingsvedtaket omhandlar. Arbeidet blir gjort som del av ei utgreiing og kartlegging av kulturminnet og kulturminneverdiane.
Det er regionalforvaltninga eller Riksantikvaren som utarbeider fredingsdokumentasjonen alt etter kven som utformar forslaget til vedtak for freding. Det kan også vere tenleg å ha vist fram dokumentasjonen til eigaren i forkant av høyringa, slik at ein er sikker på at eigaren er einig i kva og korleis eigedommen blir omtalt.
Dersom det er regionalforvaltninga som lagar fredingsdokumentasjonen, er det lurt om ein sjekkar med Riksantikvaren med tanke på innhaldet og nivået, sidan Riksantikvaren til slutt skal gjere det endelege vedtaket basert på denne informasjonen.
Oversending av ferdig utarbeidd fredingsforslag med tilhøyrande dokumentasjonsvedlegg til Riksantikvaren må skje i eit format som kan redigerast, slik at Riksantikvaren kan tilpasse innhaldet. Fredingsdokumentasjonen er ein del av vedtaket, og sidan Riksantikvaren er vedtaksmyndigheit, er Riksantikvaren også ansvarleg for innhaldet i dokumentasjonen som følgjer med.
Omfanget av og nivået på dokumentasjonen kjem an på kompleksiteten i fredingsobjektet. Den viktigaste hensikta med dokumentasjonen er å gje ei god innsikt i fredingsobjektet og grunngjevinga for fredinga. Dokumentasjonen skal beskrive det som blir freda, godt nok til at ein person som ikkje kjenner kulturminnet eller bakgrunnen for fredinga frå før, forstår fredingsverdiane og ‑omfanget.
I fredingsdokumentasjonen må det ikkje gjevast informasjon som gjev grunnlag for misforståingar eller eit inntrykk av at det er gjeve dispensasjonar på førehand. Alle rettar/plikter som følgjer av vedtaket, skal stå i føresegnene i sjølve fredingsvedtaket. Det må heller ikkje gjevast omtalar baserte på subjektive meiningar.
2. Skilje mellom informasjon som er offentleg og unnateken innsyn frå allmenta
Fredingsdokumentasjonen skil mellom offentleg tilgjengeleg informasjon og informasjon som har privat eller sensitiv karakter. Når dokumentasjonen blir utarbeidd, er det viktig å skilje mellom desse og sørgje for at informasjon som har privat eller sensitiv karakter er unnteken innsyn frå allmenta. Fredingsdokumentasjonen må derfor delast opp i to filer, del 1 og del 2, dersom fredinga gjeld kulturminne som er privateigde, har privat karakter eller av andre årsaker viser sensitiv informasjon.
Del 1
av fredingsdokumentasjonen inneheld informasjon som er offentleg. Den beskriv eksteriøret til kulturminnet og offentleg tilgjengelege interiør og uteområde (grøntanlegg, naturområde osv.)
Del 2
av fredingsdokumentasjonen inneheld alt som er unnteken innsyn frå allmenta. Den beskriv interiør og uterom som anten er privateigde, har privat karakter eller av andre årsaker viser sensitiv informasjon. Denne fila må vere unnateken innsyn frå allmenta med heimel i offentleglova § 13 jf. forvaltningslova § 13 (teieplikt). Dette gjeld både ved arkivering av materiale og ved utsending og publisering av fredingsforslag ved høyringar mv.
I enkelte tilfelle kan det vere uklart kva som er å rekne som offentleg og privat karakter, særleg kan det gjelde til dømes garderobar, kontor eller soverom/opphaldsrom i offentlege bygningar/institusjonar (bilete på veggene / dokument med sensitiv info qrmasjon / private gjenstandar osv.). I slike tilfelle må ein vurdere graden av offentleg/privat. Dersom romma blir vurderte å ha offentleg karakter og skal omfattast i del 1, pass på å fjerne private gjenstandar, og bruk skjønn i vurderinga av kva som kan vere med på biletet.
3. Foto, planteikningar og kart
I tillegg til beskrivande informasjon om kulturminnet skal fredingsdokumentasjonen også innehalde foto, planteikningar og kart.
Foto
Alle fotografi skal følgjast av ein bilettekst som identifiserer kulturminnet, eventuelt kva del av det som er avbilda. Kvart bilete skal og ha fotokreditering: fotograf og eigaren av fotografiet, eventuelt kun eigar.
Unngå private motiv, til dømes personar, parkerte bilar og personlege effektar (til dømes medisinar, skitentøy, kunst, samlarobjekt med meir.)

Eigarrettane ved fotografering
Det må liggje føre ein skriftleg avtale med eller løyve frå eigaren i forkant av ei fotografering. Bruk dokumentet «Avtale om fotografering» der det er nærmare detaljar om kva som blir avtalt.
Foto som må vere unntekne innsyn frå allmenta
Følgjande bilete må vere unnatekne innsyn frå allmenta og derfor leggjast i del 2 (også dei som ligg i Fotoweb):
- Fotografi av private heimar og interiøret til andre private bygningar. Dette gjeld også eldre fotografi.
- Fotografi frå private uteområde, det vil seie uteområde som ikkje kan sjåast frå offentleg rom, som tun, lukka bakgardar etc.
- Fotografi av rom i offentlege bygningar som blir vurderte å ha privat karakter
- Fotografi av rom i offentlege bygningar som blir vurderte å innehalde sensitiv informasjon (tryggleiksomsyn)
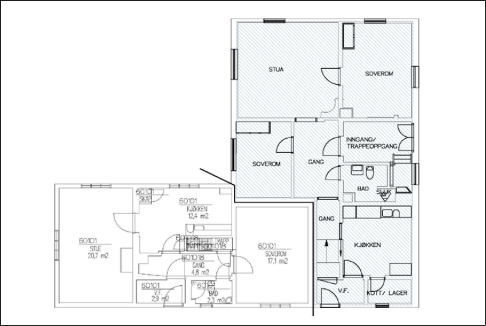
Planteikningar
Fredingsdokumentasjonen skal innehalde planteikningar som viser kva som er freda. I tillegg skal planteikninga hjelpe til med å kople bileta av romma på ein slik måte at ein forstår kva bilete som høyrer til kva rom, og kvar ein er i huset. Kvart av romma på planteikninga skal derfor nummererast og eventuelt namngjevast med kopling til bileta. Dersom det ikkje finst noka planteikning, kan foto av rømmingsplanar (desse har ofte gode planteikningar) eller handteikna skisser også brukast.
Planteikningar som må vere unntekne innsyn frå allmenta
Planteikningar av offentlege bygg kan vere unntekne innsyn frå allmenta, men det må da heimlast i lov (sjå offentleglova kapittel 3). Dette kan til dømes vere grunngjeve i tilhøve som kan gjere det enklare å gjennomføre strafflagde handlingar, eller i andre tryggleiksomsyn.

Kart
Fredingsdokumentasjonen skal innehalde eit oversiktskart som viser kvar kulturminnet eller fredingsområdet er plassert i ein større geografisk samanheng. Kva som er tenleg målestokk, må vurderast frå sak til sak.

4. Vedlegg DEL 1 – offentleg
Vedlegg del 1 beskriv det offentleg tilgjengelege kulturminnet med eksteriør, offentleg tilgjengelege interiør, uteområde (grøntanlegg, naturområde osv.) og arkeologiske kulturminne.
Del 1 skal innehalde:
Framside og innhaldsliste
- Namn på kulturminnet/fredingsområdet tilsvarande nemninga i fredingssaka
- Teksten «Dokumentasjon til fredingssak – del 1»
- Oversiktsbilete av kulturminnet eller området
- Datering av dokumentasjonsvedlegg og utførande institusjon, med eventuell logo
- Sidetal og botntekst («Fredingsdokumentasjon – ‘Namn på kulturminnet’ – del 1»)
- Innhaldsliste

Beskriving av lokalitet
- Namn på kulturminnet og Kulturminne-ID
- Lokalt kart som viser det som blir freda, med stad-/gatenamn
- Situasjonsplan eller -kart over det som freda, med mål og detaljar som strukturar og vegetasjon
- Kortfatta beskriving av kulturminnetypen
- Beskriving av kulturminnet/fredingsområdet som heilskap med fotografi
- Kortfatta beskriving av historia til kulturminnet, med eventuelle eldre kart, historiske bilete, måleri, arkitektteikningar eller annan visuell dokumentasjon som fortel om historia til kulturminnet. (Hugs kjelde og datering i bilettekst.)
- Kortfatta beskriving av korleis kulturminnet knyter seg til ein større overordna kontekst og samanheng (dvs. samfunnsmessige utviklingstrekk eller anna kulturell, historisk eller næringsmessig betydning)
- Beskriving av eventuelle relevante freda og verna kulturminne eller område i nærområdet
Beskriving av enkeltminne
Beskriving av kvart enkeltminne i fredinga.
I beskrivinga bør desse punkta vere med:
For byggverk / teknisk industrielt kulturminne
Eksteriør:
- Namn på enkeltminnet og Kulturminne-ID
- Datering
- Kart / enkel oppmåling av grunnflata, breidda og høgda til bygningen
- Beskriving av eksteriøret (typen bygning/kulturminne og stilart / stilhistorisk plassering) og historikk (ombyggingar, endringar, tilføyingar)
- Bygnings-/veggkonstruksjon, materiale og byggjeteknikk, panel/fasadebehandling, grunnmur, trapper, takform/-konstruksjon, taktekke/-materiale og skorstein, gerikter, dører og vindauge (materiale, beslag, utsjånad/stiltrekk)
- Tekniske og industrielle installasjonar
- Foto
- Oversiktsbilete som viser kulturminnet
- Frontale foto av langsider og gavlar (kvar fasade rett på)
- Perspektivfoto av alle hjørne (to og to fasadar «over hjørne»)
- Detaljar som vindauge, dører, listverk, trapper, karnapp mv.
- Oversiktsbilete som viser kulturminnet
- Frontale foto av langsider og gavlar (kvar fasade rett på)
- Perspektivfoto av alle hjørne (to og to fasadar «over hjørne»)
- Detaljar som vindauge, dører, listverk, trapper, karnapp mv.
Offentleg tilgjengelege interiør
- Planteikning
- Beskriving av kvart av romma som blir freda, med namn og romnummer (beskriv gjerne per etasje med tilhøyrande planteikning for at dokumentet skal bli oversiktleg)
- Kvart rom blir identifisert med tilvising til namn og romnummer, med ei markering på planteikninga eller på annan måte som gjer det mogleg å identifisere
- Kvart rom blir beskrive enkeltvis med tanke på golv, vegger, tak, dører, vindauge, overflater og eventuelt inventar, plassering av teknisk utstyr / maskiner, trapper, piper/skorsteinar, innvendig takkonstruksjon
- Datering, beskriving av bygningshistorikk (kva er originalt, eldre, nytt, legg ved eventuelle eldre planteikningar)
- Kvart rom blir identifisert med tilvising til namn og romnummer, med ei markering på planteikninga eller på annan måte som gjer det mogleg å identifisere
- Kvart rom blir beskrive enkeltvis med tanke på golv, vegger, tak, dører, vindauge, overflater og eventuelt inventar, plassering av teknisk utstyr / maskiner, trapper, piper/skorsteinar, innvendig takkonstruksjon
- Datering, beskriving av bygningshistorikk (kva er originalt, eldre, nytt, legg ved eventuelle eldre planteikningar)
- Beskriving av større laust inventar som blir freda
- Beskriving av alder, utsjånad, stilart mv. for kvart av inventarstykka som blir foreslått freda. Dersom objektet er spesiallaga til bygningen, bør også designaren/arkitekten nemnast. Dersom det er teknisk inventar, kan funksjon, produsent og type også nemnast.
- Tal på inventarstykke
- Lokalisering i bygning
- Eventuelle demonterte bygningsdelar som er lagra på eigedommen eller unntaksvis annan stad, og som inngår i fredinga
- Beskriving av alder, utsjånad, stilart mv. for kvart av inventarstykka som blir foreslått freda. Dersom objektet er spesiallaga til bygningen, bør også designaren/arkitekten nemnast. Dersom det er teknisk inventar, kan funksjon, produsent og type også nemnast.
- Tal på inventarstykke
- Lokalisering i bygning
- Eventuelle demonterte bygningsdelar som er lagra på eigedommen eller unntaksvis annan stad, og som inngår i fredinga
- Foto
- Oversiktsfoto av alle rom som er omfatta av fredinga, om mogleg diagonalfoto slik at mest mogleg av rommet kjem med (2–4 foto av kvar rom)
- Utsnitt og detaljar i kvart av romma som vindauge, dører, trapper, eldstader, golv, tak, synlege konstruktive element, skorstein mv.
- Tekniske innretningar, maskiner, utstyr – både fastmonterte og tilhøyrande lause gjenstandar/element som inngår i heilskapen, mv.
- Større laust inventar omfatta av fredinga
- Eldre interiørbilete
- Oversiktsfoto av alle rom som er omfatta av fredinga, om mogleg diagonalfoto slik at mest mogleg av rommet kjem med (2–4 foto av kvar rom)
- Utsnitt og detaljar i kvart av romma som vindauge, dører, trapper, eldstader, golv, tak, synlege konstruktive element, skorstein mv.
- Tekniske innretningar, maskiner, utstyr – både fastmonterte og tilhøyrande lause gjenstandar/element som inngår i heilskapen, mv.
- Større laust inventar omfatta av fredinga
- Eldre interiørbilete

For offentleg tilgjengeleg grøntanlegg/uteområde
- Namn på enkeltminnet og Kulturminne-ID
- Datering
- Situasjonsplan/kart over det som blir freda, med mål og detaljar som strukturar og vegetasjon
- Beskriving av kulturminnet (typen grøntanlegg/uteområde og stilart / stilhistorisk plassering) og historikk (kva er originalt, eldre, nytt)
- Strukturar (bed, terrasseringar, stiar, gjerde, dammar, fontener mv. og den innbyrdes samanhengen mellom dei, materialbruk, teknikkar mv.) og vegetasjon/plantning (storleik, type, artar, solitære tre mv.)
- Foto
- Oversiktsbilete som viser grøntanlegget/uteområdet
- Utandørs detaljar som brulegging/vegdekke, vegar, stiar, plenar, bed, tre, buskar, terrasseringar, konstruksjonar og strukturar og andre element som inngår i fredinga
- Oversiktsbilete som viser grøntanlegget/uteområdet
- Utandørs detaljar som brulegging/vegdekke, vegar, stiar, plenar, bed, tre, buskar, terrasseringar, konstruksjonar og strukturar og andre element som inngår i fredinga
For arkeologiske kulturminne
- Namn på enkeltminnet og Kulturminne-ID
- Datering
- Situasjonsplan/kart over det som blir freda, med mål og detaljar som strukturar og vegetasjon
- Beskriving av kulturminnet (typen arkeologisk kulturminne) og historikk
- Strukturar, vegetasjon og topografi mv.
- Foto
- Oversiktsbilete som viser det arkeologiske kulturminnet i landskapet
- Detaljar som strukturar, spor, samanhengar og enkeltelement
- Oversiktsbilete som viser det arkeologiske kulturminnet i landskapet
- Detaljar som strukturar, spor, samanhengar og enkeltelement

For områdefreding / enkeltminne freda etter § 19
For § 19 er behovet for dokumentasjon noko enklare sidan område/enkeltminne freda etter denne føresegna ikkje har fredingsverdi i seg sjølve, men er freda for å bevare og beskytte freda kulturminne etter §§ 4, 15, 20 eller 22 a.
- Namn på enkeltminnet og Kulturminne-ID
- Datering
- Situasjonsplan/kart over det som blir freda, med mål og detaljar som strukturar og vegetasjon
- Beskriving av kulturminnet (typen område, landskapstrekk) og historikk
- Strukturar, gjerde, bygningar, objekt mv., topografi og vegetasjon som har noko å seie for opplevinga av kulturminnet/-na (freda etter §§ 3, 15, 20 eller 22 a) som skal bevarast/beskyttast.
- Tilhøve som har vitskapleg interesse
- Foto
- Oversiktsbilete som viser omfanget av områdefredinga
- Strukturar og vegetasjon som er vurderte som viktige for opplevinga av det som skal bevarast/beskyttast, når dette også er nemnt i fredingsvedtaket
- Oversiktsbilete som viser omfanget av områdefredinga
- Strukturar og vegetasjon som er vurderte som viktige for opplevinga av det som skal bevarast/beskyttast, når dette også er nemnt i fredingsvedtaket
Kjelder
Gje opp relevante kjelder/litteratur det blir vist til i dokumentasjonsvedlegget del 1.
5. Vedlegg DEL 2 – unnteke innsyn frå allmenta
Del 2 beskriv interiør og uterom som anten er privateigde, har privat karakter eller som av andre årsaker viser sensitiv informasjon, og som derfor må vere unnatekne innsyn frå allmenta med heimel i offentleglova § 13 jf. forvaltningslova § 13 (teieplikt).
Del 2 må lagast i ei eiga fil.
Fredingsdokumentasjonen i del 2 skal innehalde følgjande:
Framside
- Overskrift «Dokumentasjon til fredingsvedtak – ‘namn på kulturminnet’ – del 2 – unnateke innsyn frå allmenta med tilvising til lovheimel»
- Sidetal og botntekst (fredingsdokumentasjon – namn på kulturminne, for dokumentasjonsvedlegg del 2 skal det også på kvar side stå at dokumentet er unnateke innsyn frå allmenta, med tilvising til lovheimel)
- Innhaldsliste/liste over rom/interiør med sidetilvising (dersom det er mange rom)
Privat interiør
- Namn på enkeltminnet og Kulturminne-ID
- Planteikning
- Beskriving av kvart av romma som blir freda (beskriv gjerne per etasje med tilhøyrande planteikning for at dokumentet skal bli oversiktleg)
- Identifiser kvart rom med tilvising til romnummeret frå planteikninga, med ei markering på planteikninga eller på annan måte som gjer det mogleg å identifisere
- Beskriv kvart rom enkeltvis med tanke på golv, vegger, tak, dører, vindauge, overflater og eventuelt inventar, plassering av teknisk utstyr / maskiner, trapper, piper/skorsteinar og innvendig takkonstruksjon
- Datering, beskriving av bygningshistorikk (kva er originalt, eldre og nytt, legg ved eventuelle eldre planteikningar)
- Identifiser kvart rom med tilvising til romnummeret frå planteikninga, med ei markering på planteikninga eller på annan måte som gjer det mogleg å identifisere
- Beskriv kvart rom enkeltvis med tanke på golv, vegger, tak, dører, vindauge, overflater og eventuelt inventar, plassering av teknisk utstyr / maskiner, trapper, piper/skorsteinar og innvendig takkonstruksjon
- Datering, beskriving av bygningshistorikk (kva er originalt, eldre og nytt, legg ved eventuelle eldre planteikningar)
- Beskriving av større laust inventar som blir freda
- Beskriving av alder, utsjånad, stilart mv. for kvart enkelt inventarstykke som blir foreslått freda. Dersom objektet er spesiallaga til bygningen, bør også designaren/arkitekten nemnast. Dersom det er teknisk inventar, kan funksjon, produsent og type også nemnast.
- Talet på interiørstykke
- Lokalisering i bygningen
- Eventuelle demonterte bygningsdelar som er lagra på eigedommen og inngår i fredinga
- Beskriving av alder, utsjånad, stilart mv. for kvart enkelt inventarstykke som blir foreslått freda. Dersom objektet er spesiallaga til bygningen, bør også designaren/arkitekten nemnast. Dersom det er teknisk inventar, kan funksjon, produsent og type også nemnast.
- Talet på interiørstykke
- Lokalisering i bygningen
- Eventuelle demonterte bygningsdelar som er lagra på eigedommen og inngår i fredinga
- Foto
- Oversiktsfoto av alle romma som er omfatta av fredinga, om mogleg diagonalfoto slik at mest mogleg av rommet kjem med (2–4 foto av kvart rom)
- Utsnitt og detaljar i kvart av romma som vindauge, dører, trapper, eldstader, golv, tak, synlege konstruktive element, skorstein mv.
- Romlege relasjonar, korridorar mv.
- Tekniske innretningar, maskiner, utstyr – både fastmonterte og tilhøyrande lause gjenstandar/element som inngår i heilskapen, mv.
- Større laust inventar omfatta av fredinga
- Eldre interiørbilete
- Oversiktsfoto av alle romma som er omfatta av fredinga, om mogleg diagonalfoto slik at mest mogleg av rommet kjem med (2–4 foto av kvart rom)
- Oversiktsfoto av alle romma som er omfatta av fredinga, om mogleg diagonalfoto slik at mest mogleg av rommet kjem med (2–4 foto av kvart rom)
- Utsnitt og detaljar i kvart av romma som vindauge, dører, trapper, eldstader, golv, tak, synlege konstruktive element, skorstein mv.
- Romlege relasjonar, korridorar mv.
- Tekniske innretningar, maskiner, utstyr – både fastmonterte og tilhøyrande lause gjenstandar/element som inngår i heilskapen, mv.
- Større laust inventar omfatta av fredinga
- Eldre interiørbilete
- Utsnitt og detaljar i kvart av romma som vindauge, dører, trapper, eldstader, golv, tak, synlege konstruktive element, skorstein mv.
- Romlege relasjonar, korridorar mv.
- Tekniske innretningar, maskiner, utstyr – både fastmonterte og tilhøyrande lause gjenstandar/element som inngår i heilskapen, mv.
- Større laust inventar omfatta av fredinga
- Eldre interiørbilete
Privat uterom
- Namn på enkeltminnet og Kulturminne-ID
- Datering
- Situasjonsplan/kart over det som blir freda, med mål og detaljar som strukturar og vegetasjon
- Beskriving av kulturminnet (typen grøntanlegg/uteområde og stilart / stilhistorisk plassering) og historikk (kva er originalt, eldre, nytt)
- Strukturar (bed, terrasseringar, stiar, gjerde, dammar, fontener mv. og den innbyrdes samanhengen mellom dei, materialbruk, teknikkar mv.), vegetasjon/plantning (storleik, type, artar, solitære tre mv.), automatisk freda arkeologiske kulturminne
- Foto
- Oversiktsbilete som viser grøntanlegg/uteområde
- Utandørs detaljar som brulegging/vegdekke, vegar, stiar, plenar, bed, tre, buskar, terrasseringar, konstruksjonar og strukturar og andre element som inngår i fredinga
- Oversiktsbilete som viser grøntanlegg/uteområde
- Utandørs detaljar som brulegging/vegdekke, vegar, stiar, plenar, bed, tre, buskar, terrasseringar, konstruksjonar og strukturar og andre element som inngår i fredinga
Områdefreding / enkeltminne freda etter § 19 innanfor eit privat område
For § 19 er behovet for dokumentasjon noko enklare sidan område/enkeltminne freda etter denne føresegna ikkje har fredingsverdi i seg sjølve, men er freda for å bevare og beskytte freda kulturminne.
- Namn på enkeltminnet og Kulturminne-ID
- Datering
- Situasjonsplan/kart over det som blir freda, med mål og detaljar som strukturar og vegetasjon
- Beskriving av kulturminnet (typen område, landskapstrekk og historikk)
- Strukturar (gjerde, bygningar, objekt mv.), topografi og vegetasjon som har noko å seie for opplevinga av det som skal bevarast/beskyttast (kulturminnet/-na freda etter §§ 4, 15, 20 eller 22 a)
- Tilhøve som har vitskapleg interesse
- Foto
- Oversiktsbilete som viser omfanget av områdefredinga
- Strukturar og vegetasjon som er vurderte som viktige for opplevinga av det som skal bevarast/beskyttast, når dette også er nemnt i fredingsvedtaket
- Oversiktsbilete som viser omfanget av områdefredinga
- Strukturar og vegetasjon som er vurderte som viktige for opplevinga av det som skal bevarast/beskyttast, når dette også er nemnt i fredingsvedtaket
Kjelder
Gje opp relevante kjelder/litteratur det blir vist til i dokumentasjonsvedlegget del 2.